top of page

GAP: The Future of Work Headquarters
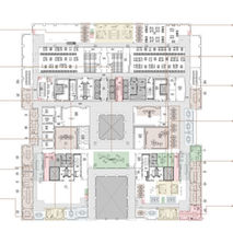
GAP’s post-pandemic workplace redesign centered around unifying three distinct brand identities—GAP, Old Navy, and Banana Republic—within a single headquarters. As the design lead for One Workplace, I guided the client through strategic workshops, visioning sessions, and coworking-led cocreation to craft a flexible, future-ready integrated environment.
With a neutral palette as the foundation, subtle shifts in materiality and detailing differentiate each floor while preserving a cohesive brand family. A bespoke kit-of-parts ensured scalability, efficiency, and long-term adaptability across the building. The final design reflects GAP’s refined modern-classic aesthetic while giving each brand room to express its personality.
Project Gallery

Key Insights

bottom of page
























